










Phuri Innoka
A House we call Home.
This project is located in Kota Denpasar, Bali.
It is a row of cluster housing on a narrow strip of land.
We drew inspiration from the past, to calibrate expectations for the future.
Starting with the idea of the Community as an anchor of any development, we took reference from the communal living organisation of the vernacular Balinese residential compound - where there are private and communal zones.
We modularised 5 categories of ‘Living Spaces, and created a hierarchy of spaces from the most private, to the most public.
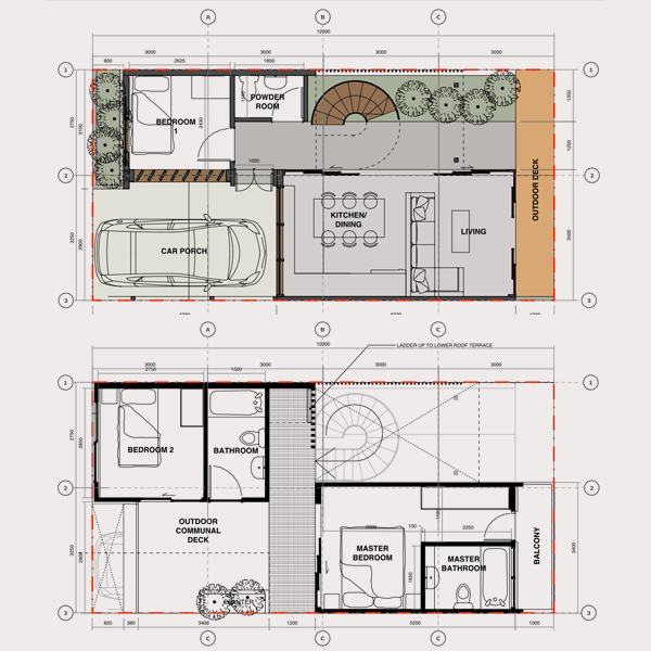
A typical inter-terrace unit is split into 2 staggered volumes.
Communal spaces of varying levels of privacy are interspersed in between these 2 volumes. Cross ventilation and daylighting is maximised. A spiral staircase in the double volume sheltered family space connects the 1st and 2nd storeys. A ladder in the 2nd storey corridor brings one up to a intimate star-gazing roof deck.
A House we call Home.
This project is located in Kota Denpasar, Bali.
It is a row of cluster housing on a narrow strip of land.
We drew inspiration from the past, to calibrate expectations for the future.
Starting with the idea of the Community as an anchor of any development, we took reference from the communal living organisation of the vernacular Balinese residential compound - where there are private and communal zones.
We modularised 5 categories of ‘Living Spaces, and created a hierarchy of spaces from the most private, to the most public.
A typical inter-terrace unit is split into 2 staggered volumes.
Communal spaces of varying levels of privacy are interspersed in between these 2 volumes. Cross ventilation and daylighting is maximised. A spiral staircase in the double volume sheltered family space connects the 1st and 2nd storeys. A ladder in the 2nd storey corridor brings one up to a intimate star-gazing roof deck.
Project Details
Year: 2021
Location: Bali, Indonesia
scope: Concept & schematic design
Project Status: construction
Year: 2021
Location: Bali, Indonesia
scope: Concept & schematic design
Project Status: construction